If you have found this property elsewhere advertised at a lower price, that same price is valid with us!
Link to frequently asked questions
Location is not the exact address of the listing.
Viewing via VIDEO CALL
CALL US TODAY +385 23 300 000

An exceptionally charming house in Kožino is for sale, located just a few kilometres from the city of Zadar. It sits only 115 m from the sea and a lovely beach, while the first floor offers a wonderful sea view.
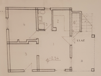
The house consists of three residential units, each with its own entrance. On the ground floor and on the first floor there is one two-bedroom apartment each, and in the ground floor area on a second level there is a studio apartment.
The total living area of the units is 160.28 m², and the property additionally includes two storage rooms – one beneath the staircase (1.9 m²) and another in the courtyard (3.05 m²). The house is built on a 246 m² plot.
The courtyard offers two parking spaces.
Handover of the property is possible from 15 September 2026.
Thanks to its excellent location and layout, the house represents a great investment for tourist rental.
The property has been very well maintained and regularly upgraded. The price includes all existing furniture, equipment and appliances (excluding personal belongings).
The construction was carried out using high-quality brick thermal blocks, and all windows are PVC with insect screens.
Heating:
– ground floor: electric convectors in the bedrooms, an oil heater in the living room, electric heater in the bathroom
– first floor: wood-burning stove in the living room, electric convectors in the living room and bedrooms, electric heater in the bathroom
– studio apartment: electric heater
For cooling, two portable air-conditioning units are available.
Flooring consists of parquet and ceramic tiles. All bathrooms were fully renovated in 2020, including new electrical and water installations. At the same time, new wooden doors were installed in the studio and first floor apartment.
Kožino is a village belonging to the city of Zadar, located about 7 km northwest of it. It has just over 800 inhabitants. Kožino decorate many villas and holiday homes. The beautiful location on the coast with its numerous beaches, while being so close to the city and all its amenities, are reasons why Kožino is so attractive. Shops, restaurants, cafes and a pharmacy can be found in the immediate vicinity. Kožino is a sought-after tourist destination because it is a true oasis of peace in the beautiful Mediterranean environment.
If you have found this property elsewhere advertised at a lower price, that same price is valid with us!
Link to frequently asked questions
