This property is no longer available!
Apartment 46.86 m², Zadar – Borik, new construction 650 m from the sea
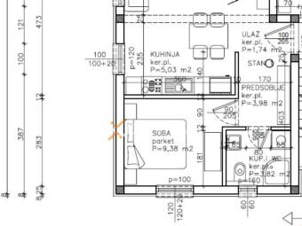
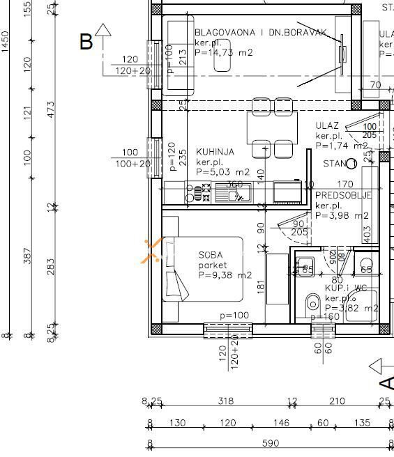
For sale is an apartment located in the attractive part of Zadar – Borik, just 650 m from the sea and 2.2 km from the city center. It is situated in a modern residential building, and the total net area including all annexes is 46.86 m².
The apartment consists of a hallway, a bedroom, a bathroom, and a kitchen with a dining and living room. The property also includes a dedicated parking space and a storage room in the basement of the building with a total area of 10.86 m² (4.86 m² net).
Equipment
The apartment features electric underfloor heating throughout and is equipped with two air conditioning units – one in the living room and one in the bedroom. The windows are PVC with triple glazing, electric shutters, and insect screens. The floors are a combination of tiles and parquet. The entrance door is burglar- and fire-resistant. The building is constructed using thermal brick blocks and has a facade insulated with 10 cm of Styrofoam. It is connected to the public sewage system. Completion of construction is planned for 2026.
No real estate transfer tax is payable on this property. The expected energy certificate is class A.
Location
This part of town, Borik, known for its sandy beaches, is well equipped with additional amenities for entertainment and recreation. Also, there are sports courts.
Borik is a destination with a beautiful beach, so it is recommended for families with children. A variety of sports facilities in the vicinity of the city of Zadar make it interesting for young people.
It is well-connected part of the city with public transportation, it has great restaurants, bars, night clubs and park for the children.
More information about the location you can find under the link Zadar.
All listings we have available in Zadar you can find here.
The following units in the same building are also available: F1260, F1261.