If you have found this property elsewhere advertised at a lower price, that same price is valid with us!
Link to frequently asked questions
Location is not the exact address of the listing.
Viewing via VIDEO CALL
CALL US TODAY +385 23 300 000

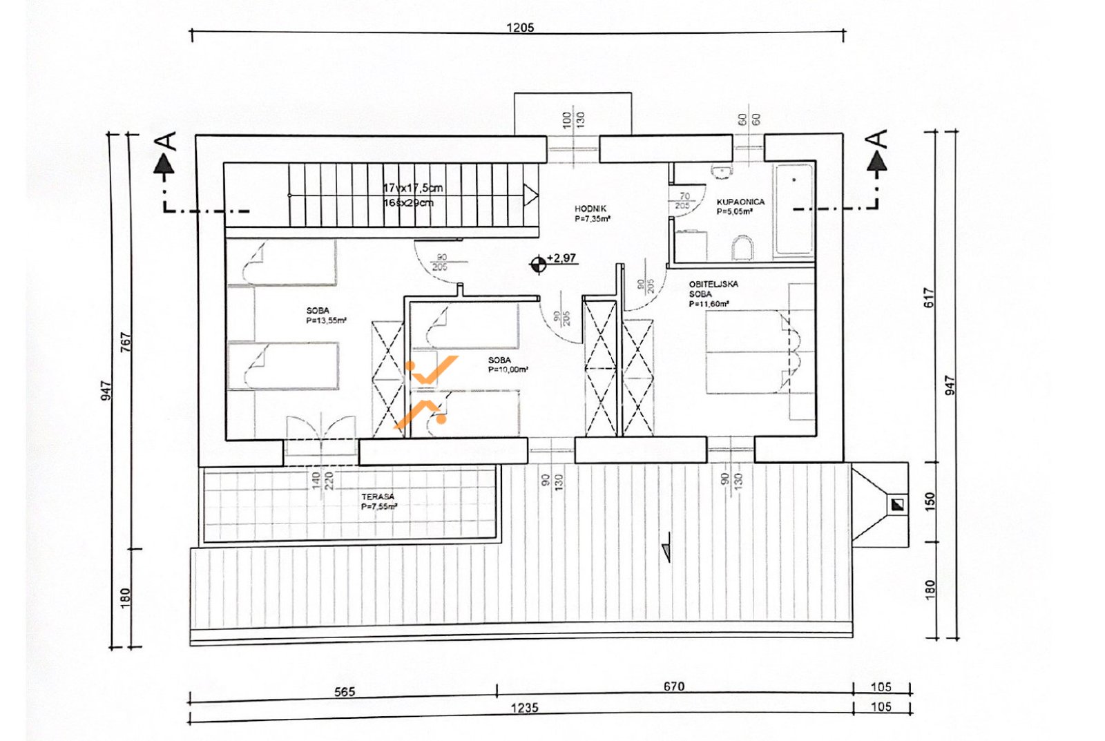
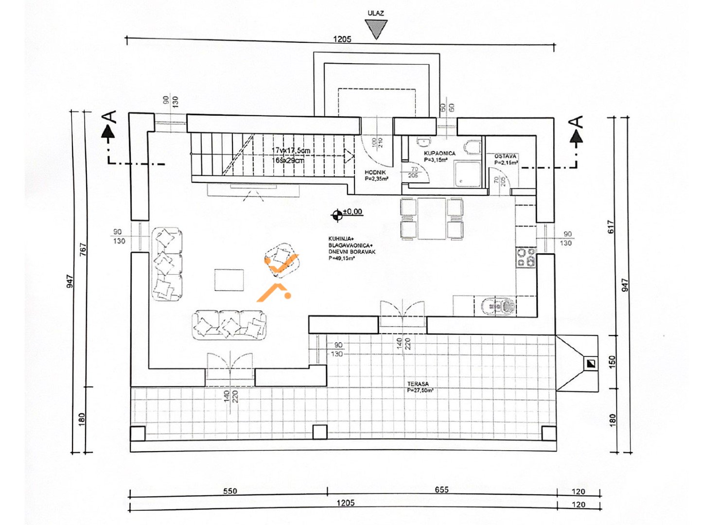
A lovely house with a pool is for sale in Radovin, a peaceful place in the municipality of Ražanac, located 4,8 km from the sea and 1,3 km from the town center. The house consists of the ground floor and the first floor, offers a functional layout and 146,40 m² of living space, while the total land area is 669 m².
It is fully furnished and ready for use, as well as for tourist rental.
The ground floor includes an entrance hall, a kitchen with dining area and living room, a bathroom, a storage room, an internal staircase and a terrace, with a total area of 91,30 m². On the first floor there are a hallway, three bedrooms, a bathroom and a terrace, with a total area of 55,10 m². The outdoor area includes a 32 m² pool, a spacious garden and a barbecue. Four parking spaces are provided.
The house is built with brick termo blocks and equipped with aluminium joinery with shutters, mosquito nets and double glazing. Tiles are installed on the ground floor, while the bedrooms on the upper floor have laminate flooring.
The facade has 7 cm of thermal insulation. There is a fireplace in the living room, and the house also has a chimney. The preparation for central heating has been completed, and air conditioning is provided with four units – in the living room and all three bedrooms.
The house was renovated in 2023 and has an A energy certificate.
Radovin is a small village in the municipality Ražanac, ideal for relaxing quiet holidays, near many attractive destinations, only 5 km from the sea, 20 km from Zadar and numerous other tourist centers with a wide range of content.
Find out why Radovin near Ražanac is an excellent choice for buying real estate.
Explore our complete selection of houses, flats, apartments and land for sale .
If you have found this property elsewhere advertised at a lower price, that same price is valid with us!
Link to frequently asked questions
