If you have found this property elsewhere advertised at a lower price, that same price is valid with us!
Link to frequently asked questions
Location is not the exact address of the listing.
Viewing via VIDEO CALL
CALL US TODAY +385 23 300 000

For sale is a land plot of 511 m², located in Zadar, area Belafuža, 770 m from the sea and 1,5 km from the town centre.
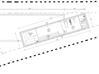
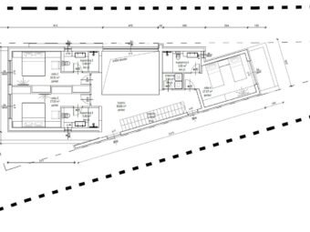
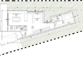
There is a main project for a house with two floors and two pools – one on the ground floor and one on the terrace on the second floor, with 4 bedrooms with bathrooms.
The width of the land is approx. 9 – 19 m, while the length is approx. 40 m.
Electricity and water are located next to the land, while connection to the sewage system is possible.
Belafuža is a city district which is suitable for family life, young people, but an interesting location for foreign guests and tourists, also. It is located only a 15-minute walk from the city center, and it is connected very well with bus lines. Although Belafuža is relatively close to the center, it’s still separated enough to provide peaceful and comfortable life. Nearby there is everything one can need for a comfortable everyday life: school, kindergartens, post office, restaurants, banks and shops.
Learn more about Zadar and explore its excellent opportunities for buying real estate.
Browse our full selection of houses, flats, apartments and land for sale .
If you have found this property elsewhere advertised at a lower price, that same price is valid with us!
Link to frequently asked questions
