If you have found this property elsewhere advertised at a lower price, that same price is valid with us!
Additional features
Link to frequently asked questions
Location is not the exact address of the listing.
Viewing via VIDEO CALL
CALL US TODAY +385 23 300 000

For sale is a building plot with a total area of 414 m2, located in the second row from the sea, only 40 m from the coastline. The plot offers a sea view and direct access to the sea, while the town center is 2 km away.
The land has a regular shape, with a width of approximately 16–18 m and a length of approximately 23 m, which allows efficient planning and construction.
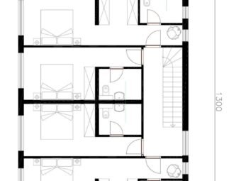
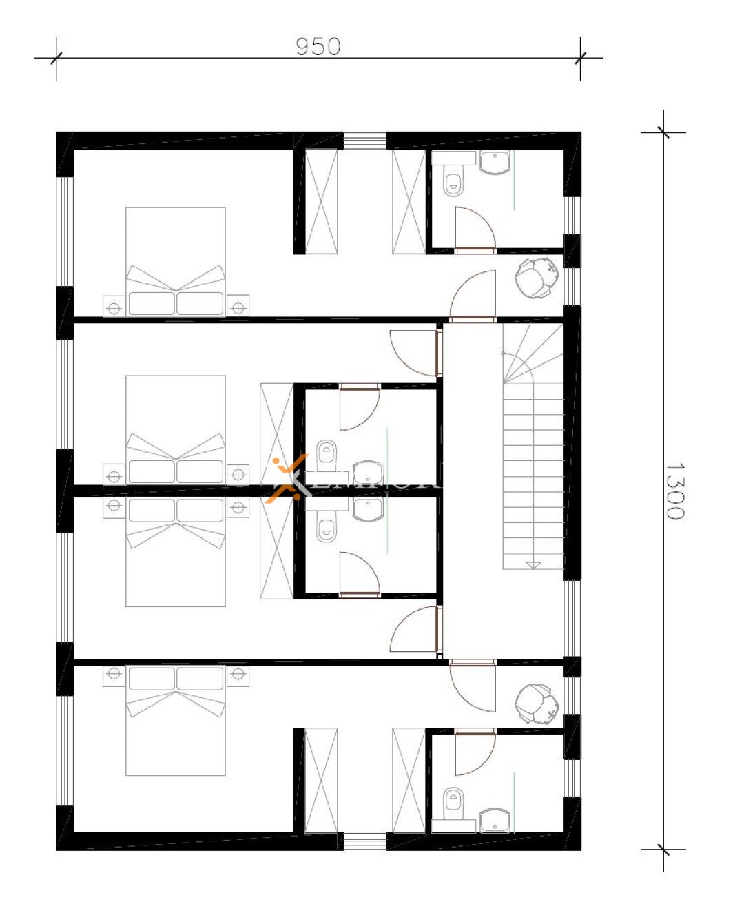
A main project is available for a house with ground floor and first floor, including a total of 4 bedrooms. The building permit is currently in the process of being obtained.
Access to the plot is provided via a private gravel road. Electricity and water connections are located approximately 40 m away.
This property represents an excellent opportunity for building a family home or as an investment in an attractive location close to the sea.
Rtina is a small place located on a promontory at about 43 m above the sea level. It belongs to the Municipality of Ražanac. The Cape is the northernmost part of the land part of Dalmatia which relates to the island of Pag by the bridge. It is located about 5 km Ražanac, and from Zadar about 20 km. Near the bridge there are the remains of the medieval Templar fortress. Rtina is known by organization of Rtina swimming marathon with an international prefix.
Discover why Ražanac is an attractive location for real estate investment.
Check out our complete selection of properties for sale.
If you have found this property elsewhere advertised at a lower price, that same price is valid with us!
Link to frequently asked questions
