If you have found this property elsewhere advertised at a lower price, that same price is valid with us!
Link to frequently asked questions
Location is not the exact address of the listing.
Viewing via VIDEO CALL
CALL US TODAY +385 23 300 000

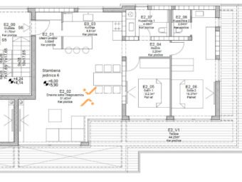
Apartment for sale on the second floor. This is an apartment in a new building. It is located in the second row to the sea. The apartment has a wonderful sea view. The layout of the rooms consists of a hallway, 2 bedrooms, 2 bathrooms, a kitchen with a dining room and a living room, and a spacious terrace. Additionally, the apartment has a roof terrace. The net usable area of the described premises is 119,66 m2.
The apartment also has two parking spaces. The total net area with all its parts is 124,66 m2.
This property is only 65 m away from the sea and 2.2 km from the center of Privlaka.
We emphasize the advantage of buying this property: the buyer does not pay any real estate transfer tax when buying.
Construction with brick thermal blocks. Facade thermal insulation 10 cm styrofoam. Floor coverings are tiles and laminate. PVC windows with electric shutters and mosquito nets. There are 4 air conditioners in the apartment. One air conditioner is in the living room, and the other three are in the bedrooms. Floor heating everywhere except bedrooms. Furthermore, the entrance door is burglar-proof and fire-proof.
Privlaka is a small tourist place located only 15-minute drive from the city of Zadar, situated on a sandy peninsula between the royal town of Nin and the island of Vir. The clear blue sea and long, shallow sandy bays are ideal to relax completely. The place offers all the necessary content for pleasant life: shops, restaurants, post office, infirmary. Lovers of sports, recreation who want to try sailing or surfing will find their own piece of paradise in the nearby places. All you need for a peaceful and relaxing family holiday in the Mediterranean style you can find here.
All properties we offer in Privlaka you can check out here.
If you have found this property elsewhere advertised at a lower price, that same price is valid with us!
Link to frequently asked questions
