If you have found this property elsewhere advertised at a lower price, that same price is valid with us!
Link to frequently asked questions
Location is not the exact address of the listing.
Viewing via VIDEO CALL
CALL US TODAY +385 23 300 000

Penthouse apartment in Privlaka is for sale, located only 150 meters from the sea. It is a modern new building.
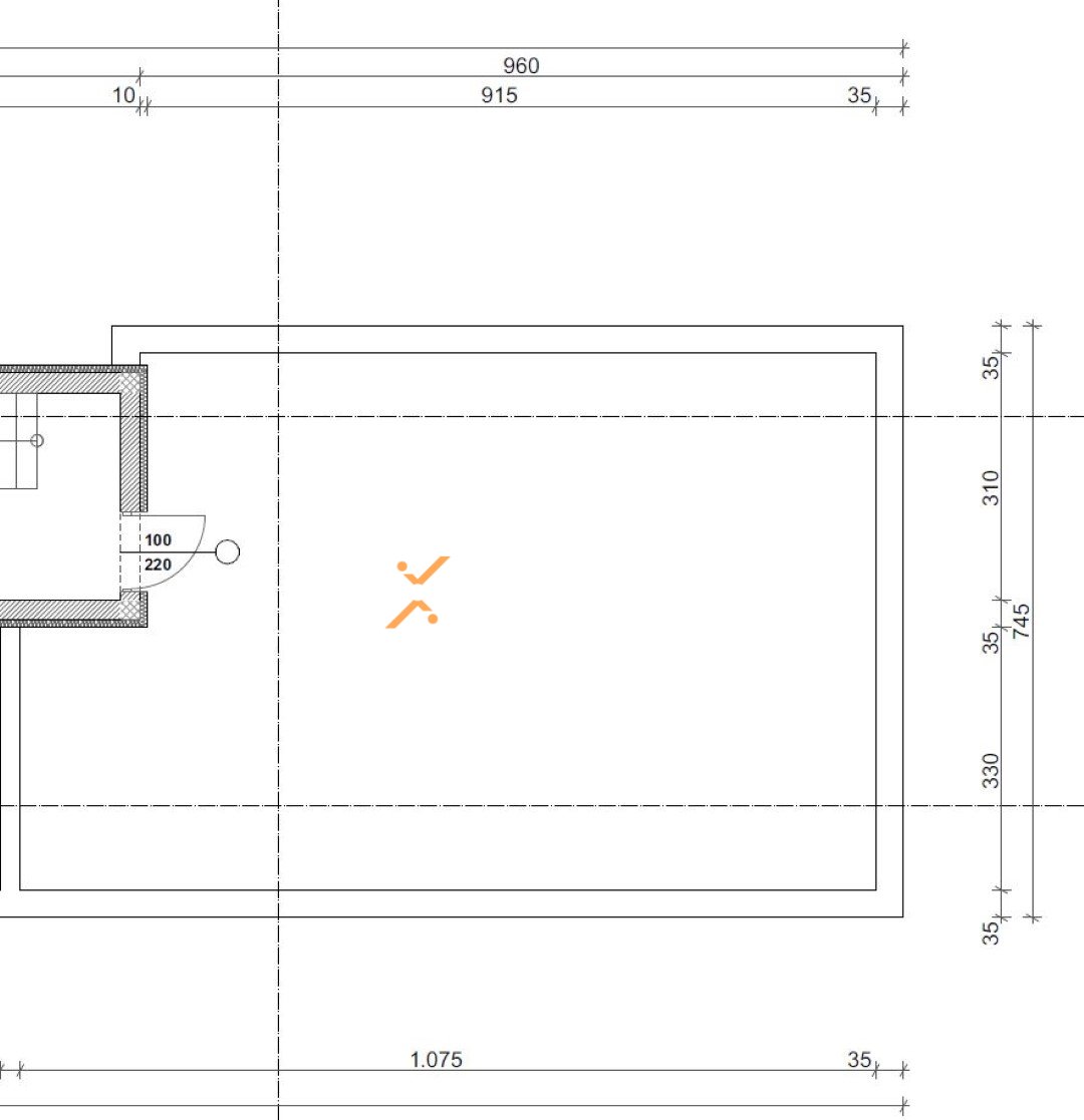
The apartment is located on the 2nd floor of the building. The layout of the rooms consists of a hallway, bathroom, living room with kitchen and dining area, two bedrooms, and a covered terrace (net 60,21 m2). From the staircase, you access the roof terrace with an area of 67,06 m2. The net usable area of the described rooms is 76,98 m2.
In addition, the apartment includes two parking spaces in front of the building.
The total net area of the apartment with all additional parts is 81,98 m2.
The distance of this property from the center of Privlaka is 1.8 km.
The building is under construction, and completion is planned for the summer of 2025.
The construction of the building with thermal brick blocks. The thermal insulation of the facade is 8 cm Styrofoam. The windows are made of PVC material with triple glazing, blinds, and mosquito nets. The floor coverings are laminate and tiles. Electric underfloor heating in the entire apartment. In addition, air conditioners will be installed in the living room and bedrooms. Furthermore, the entrance door of the apartment is burglar-proof and fire-proof.
An energy certificate A is expected.
Privlaka is a small tourist place located only 15-minute drive from the city of Zadar, situated on a sandy peninsula between the royal town of Nin and the island of Vir. The clear blue sea and long, shallow sandy bays are ideal to relax completely. The place offers all the necessary content for pleasant life: shops, restaurants, post office, infirmary. Lovers of sports, recreation who want to try sailing or surfing will find their own piece of paradise in the nearby places. All you need for a peaceful and relaxing family holiday in the Mediterranean style you can find here.
More information about the location you can find under the link Privlaka.
The building consists of a total of 6 apartments. The following are still available: A1467, A1468, A1469.
If you have found this property elsewhere advertised at a lower price, that same price is valid with us!
Link to frequently asked questions
