If you have found this property elsewhere advertised at a lower price, that same price is valid with us!
Link to frequently asked questions
Location is not the exact address of the listing.
Viewing via VIDEO CALL
CALL US TODAY +385 23 300 000

Located in the peaceful village of Seline, Starigrad, just 220 m from the sea and 2,5 km from the town center, this newly built apartment is part of a modern residential building with a total of four units. It offers a functional layout, great comfort and a fantastic sea view.
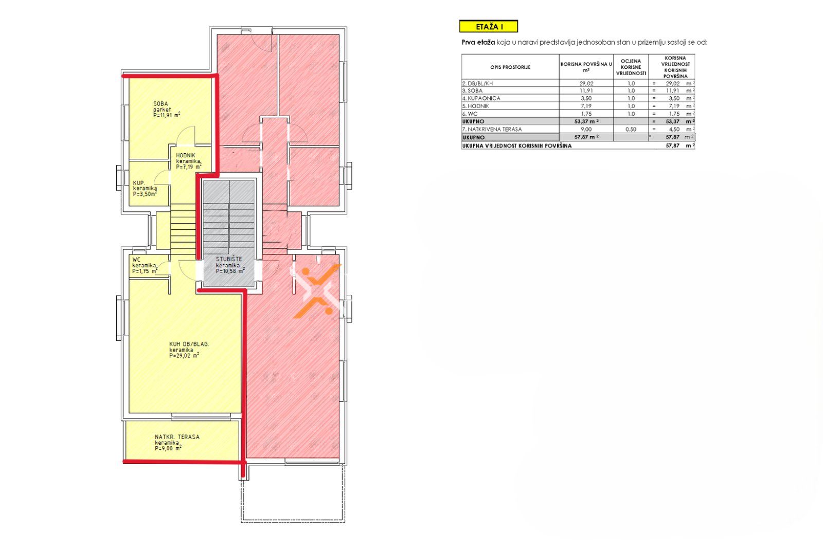
The total net usable area, including all extras, is 66,26 m2. The apartment comes with its own parking space, a private garden and a planter – ideal for enjoying the Mediterranean lifestyle.
Layout:
The apartment consists of a hallway with 7 steps forming a split level, an open-plan living room with dining area and kitchen, one bedroom, bathroom, separate toilet and a covered terrace perfect for outdoor relaxation. The interior net usable space measures 57,87 m2.
The apartment includes a private parking space of 13,75 m², a paved garden area (4,38 m²), a green lawn area (42,70 m²), and a planter (4,85 m²).
Heating is provided through electric underfloor heating in the living room, dining area, kitchen, and bathroom, and there are two air conditioning units installed – one in the living room and one in the bedroom.
The building is constructed with brick thermal blocks, PVC joinery, and a 10 cm styrofoam façade. The floors are tiled, and the entrance door is burglar- and fire-resistant. Access to the building is provided via an asphalted public road.
No real estate transfer tax is payable.
Expected energy certificate: A
Seline is a beautiful place on the coast of the Velebit Channel with enchanting beaches. It is located at the foot of the Velebit Mountain and the Paklenica National Park and right next to the center of the Riviera and the seat of the Starigrad Paklenica municipality. All facilities for daily needs are in the immediate vicinity. Combination of mountains and sea with an excellent modern tourist offer will delight everyone.
All listings we have available in Seline you can find here.
The building consists of a total of 10 apartments. The following are still available: A1509, A1510, A1511.
If you have found this property elsewhere advertised at a lower price, that same price is valid with us!
Link to frequently asked questions
