If you have found this property elsewhere advertised at a lower price, that same price is valid with us!
Link to frequently asked questions
Location is not the exact address of the listing.
Viewing via VIDEO CALL
CALL US TODAY +385 23 300 000

This apartment is located on the second floor of a small residential building in Seline, part of the Starigrad municipality. The building consists of four units in total, and the apartment is just 220 meters from the sea and 2,5 kilometers from the town center.
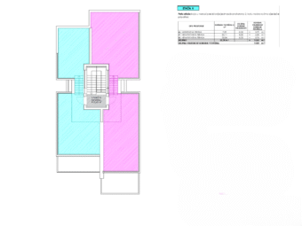
The net interior surface is 57,87 m², while the total net area including all extras is 76,45 m². The layout consists of a hallway with seven steps forming a split level, a living room with dining area and kitchen, one bedroom, one bathroom, a separate toilet, and a covered terrace. The extras include one parking space of 2,75 m² and a private roof terrace comprising a covered part of 3,79 m² and two uncovered sections of 6,28 m² and 5,76 m², connected by internal steps.
No property transfer tax applies.
Heating is provided by electric underfloor heating in the living room, kitchen, dining area, and bathroom. Cooling is ensured by two air conditioning units – one in the living area and one in the bedroom.
The building is constructed with thermal clay blocks and insulated with a 10 cm styrofoam facade. It features PVC windows, tiled floors, and a burglar- and fire-resistant entrance door. Access is via a public asphalt road.
The expected energy certificate is A.
Seline is a beautiful place on the coast of the Velebit Channel with enchanting beaches. It is located at the foot of the Velebit Mountain and the Paklenica National Park and right next to the center of the Riviera and the seat of the Starigrad Paklenica municipality. All facilities for daily needs are in the immediate vicinity. Combination of mountains and sea with an excellent modern tourist offer will delight everyone.
All listings we have available in Seline you can find here.
The building consists of a total of 10 apartments. The following are still available: A1508, A1509, A1511.
If you have found this property elsewhere advertised at a lower price, that same price is valid with us!
Link to frequently asked questions
