If you have found this property elsewhere advertised at a lower price, that same price is valid with us!
Link to frequently asked questions
Location is not the exact address of the listing.
Viewing via VIDEO CALL
CALL US TODAY +385 23 300 000

This attractive apartment is located in a peaceful area of Rovanjska, just 120 m from the sea and 800 m from the town centre. Thanks to its location and beautiful sea view, the property is ideal as a second home or a rental investment.
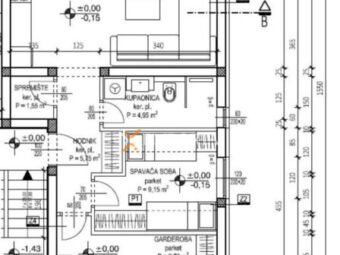
The layout includes a hallway, two bedrooms – one of which has a private bathroom and walk-in wardrobe – an additional bathroom, a storage room, and a kitchen with dining and living area. The living area opens to a partially covered terrace. The net living area is 72,95 m², and the total area including all additions is 81,66 m². The apartment includes a private garden of 59,67 m² and one parking space.
The bathrooms are fitted with electric underfloor heating, and there are three air conditioning units in the living room and both bedrooms. The building is constructed using thermal brick blocks, with PVC joinery, triple-glazed windows, insect screens, and electric shutters. The façade has 10 cm of Styrofoam insulation, and the floors are tiled. Entrance doors are burglar- and fire-resistant, and the roof is new, flat, and made of concrete. The completion of construction is expected in 2026.
The building is expected to receive energy certificate A.
Located in the bay where is mixture of continental and maritime climate, at the very end of the Velebit channel Rovanjska is perfect for a quiet life and home. Great location, direct access to the highway, 25-minute drive from Zadar, 10 minutes from Starigrad and 250 km to the capital town Zagreb Rovanjska became a tourist oasis that offers a peaceful and enjoyable holiday in the Dalmatian ambience.
More information about the location you can find under the link Rovanjska.
All listings we have available in Jasenice you can find here.
The following units in the same building are also available: A1517, A1519, A1520, A1521, A1522.
If you have found this property elsewhere advertised at a lower price, that same price is valid with us!
Link to frequently asked questions
