If you have found this property elsewhere advertised at a lower price, that same price is valid with us!
Link to frequently asked questions
Location is not the exact address of the listing.
Viewing via VIDEO CALL
CALL US TODAY +385 23 300 000

A modernly designed apartment for sale, located in a peaceful part of Rovanjska, just 120 m from the sea and 800 m from the town center. Thanks to its great location and beautiful sea view, this property is perfect for both living and tourism investment.
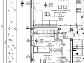
The apartment includes a hallway, two bedrooms – one with its own bathroom and walk-in wardrobe – an additional bathroom, and a kitchen with dining and living area that opens onto a covered terrace. The net usable area is 66,60 m², and the total net area including additions is 69,35 m². One parking space is included.
The bathrooms are equipped with electric underfloor heating, and there are three air conditioning units – in the living room and both bedrooms. The building is constructed with thermal brick blocks, and the PVC joinery includes triple-glazed windows, electric shutters, and insect screens. The façade is insulated with 10 cm Styrofoam, and the floors are covered with quality tiles. The entrance door is burglar- and fire-resistant, and the roof is new, flat, and made of concrete.
Completion is planned for 2026, and the expected energy certificate is class A.
Located in the bay where is mixture of continental and maritime climate, at the very end of the Velebit channel Rovanjska is perfect for a quiet life and home. Great location, direct access to the highway, 25-minute drive from Zadar, 10 minutes from Starigrad and 250 km to the capital town Zagreb Rovanjska became a tourist oasis that offers a peaceful and enjoyable holiday in the Dalmatian ambience.
More information about the location you can find under the link Rovanjska.
All listings we have available in Jasenice you can find here.
The following units in the same building are also available: A1517, A1518, A1520, A1521, A1522.
If you have found this property elsewhere advertised at a lower price, that same price is valid with us!
Link to frequently asked questions
