If you have found this property elsewhere advertised at a lower price, that same price is valid with us!
Link to frequently asked questions
Location is not the exact address of the listing.
Viewing via VIDEO CALL
CALL US TODAY +385 23 300 000

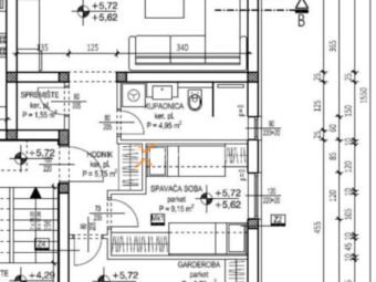
For sale is a modern apartment in a new building in Rovanjska, located just 120 m from the sea and 800 m from the town center. The total net usable area is 70.68 m², including a covered terrace and a private parking space. The property offers an excellent sea view and is part of a contemporary building with a flat concrete roof.
The layout includes a hallway, two bedrooms – one with an en-suite bathroom and walk-in wardrobe – an additional bathroom, a kitchen with dining and living area, a storage room, and a covered terrace.
The apartment features electric underfloor heating in the bathrooms and three air conditioning units – one in the living room and one in each bedroom. The windows are PVC with triple glazing, electric shutters, and insect screens. Floors are covered with ceramic tiles. The entrance door is burglar- and fire-resistant. The building is constructed with thermo brick blocks and insulated with 10 cm thick styrofoam.
Construction is expected to be completed in 2026. The anticipated energy certificate is class A.
Located in the bay where is mixture of continental and maritime climate, at the very end of the Velebit channel Rovanjska is perfect for a quiet life and home. Great location, direct access to the highway, 25-minute drive from Zadar, 10 minutes from Starigrad and 250 km to the capital town Zagreb Rovanjska became a tourist oasis that offers a peaceful and enjoyable holiday in the Dalmatian ambience.
More information about the location you can find under the link Rovanjska.
All listings we have available in Jasenice you can find here.
The following units in the same building are also available: A1517, A1518, A1519, A1520, A1521
If you have found this property elsewhere advertised at a lower price, that same price is valid with us!
Link to frequently asked questions
