If you have found this property elsewhere advertised at a lower price, that same price is valid with us!
Additional features
Link to frequently asked questions
Location is not the exact address of the listing.
Viewing via VIDEO CALL
CALL US TODAY +385 23 300 000

For sale is a modern apartment in a new building located in a desirable area of Sukošan, only 200 m from the sea and 1,4 km from the town center. This property is perfect for those seeking a comfortable home or investment near the sea, combining modern design, excellent construction quality, and a peaceful setting.
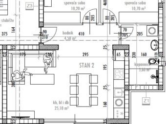
The apartment is situated on the ground floor and has a net living area of 68,53 m². The layout includes a hallway, two bedrooms, bathroom, kitchen with dining area and living room, and a covered terrace.
It also features one parking space.
The total net usable area including all additions amounts to 71,28 m².
The buyer does not pay real estate transfer tax.
The apartment is built to high construction standards and equipped with modern systems.
Walls are made of thermal brick blocks, while the 10 cm styrofoam facade insulation ensures excellent energy efficiency.
It has electric underfloor heating throughout the apartment and three air-conditioning units – one in the living room and one in each bedroom.
Windows are PVC with triple glazing, equipped with electric shutters and mosquito screens.
The floors are a combination of parquet and ceramic tiles, and the front door is security and fire-resistant.
The property has a flat concrete roof, a biological wastewater treatment system, and asphalted public access.
Construction is planned to be completed in 2026, and the expected energy certificate is A, guaranteeing energy efficiency and low maintenance costs.
Sukošan is a charming Dalmatian town nestled in the spacious Zlatna Luka bay, only 7 km from Zadar. With around 3,000 residents and nearby villages such as Debeljak, Glavica, and Gorica, it offers a peaceful Mediterranean atmosphere combined with excellent transport connections. The main attraction is D-Marin Dalmacija, the largest marina on the Adriatic, making Sukošan a true paradise for sailors and sea lovers.
The town is famous for its diverse beaches, including the popular Children’s Paradise, the quieter Podvare beach, or the pebble Makarska beach, as well as hidden coves waiting to be discovered. Swimming, sailing, and relaxing seaside walks are enhanced by a rich cultural and social life. During summer, visitors can enjoy fishermen’s feasts, concerts, folklore evenings, and the feast of St. Kasijan with its festive fireworks. Sports lovers are drawn by the swimming marathon, local tournaments, and the renowned regatta “Dance with Sails.”
Thanks to its unspoiled nature, first-class nautical facilities, and vibrant events calendar, Sukošan is one of the most desirable places to buy property on the Adriatic – whether you are looking for a tranquil home by the sea or an attractive investment with high rental potential.
Explore the complete selection of our properties in Sukošan.
If you are looking for a property by the sea, the town of Sukošan is the perfect choice for you!
In the same building, we are also selling the following property A1543.
If you have found this property elsewhere advertised at a lower price, that same price is valid with us!
Link to frequently asked questions
