If you have found this property elsewhere advertised at a lower price, that same price is valid with us!
Link to frequently asked questions
Location is not the exact address of the listing.
Viewing via VIDEO CALL
CALL US TODAY +385 23 300 000

For sale is a modern ground floor apartment in a new development in Petrčane, located in the second row from the sea, only 30 m from the coastline, while the town center is 500 m away. This property represents an excellent opportunity for a peaceful lifestyle or tourist rental, and moreover stands out with a private garden and pool.
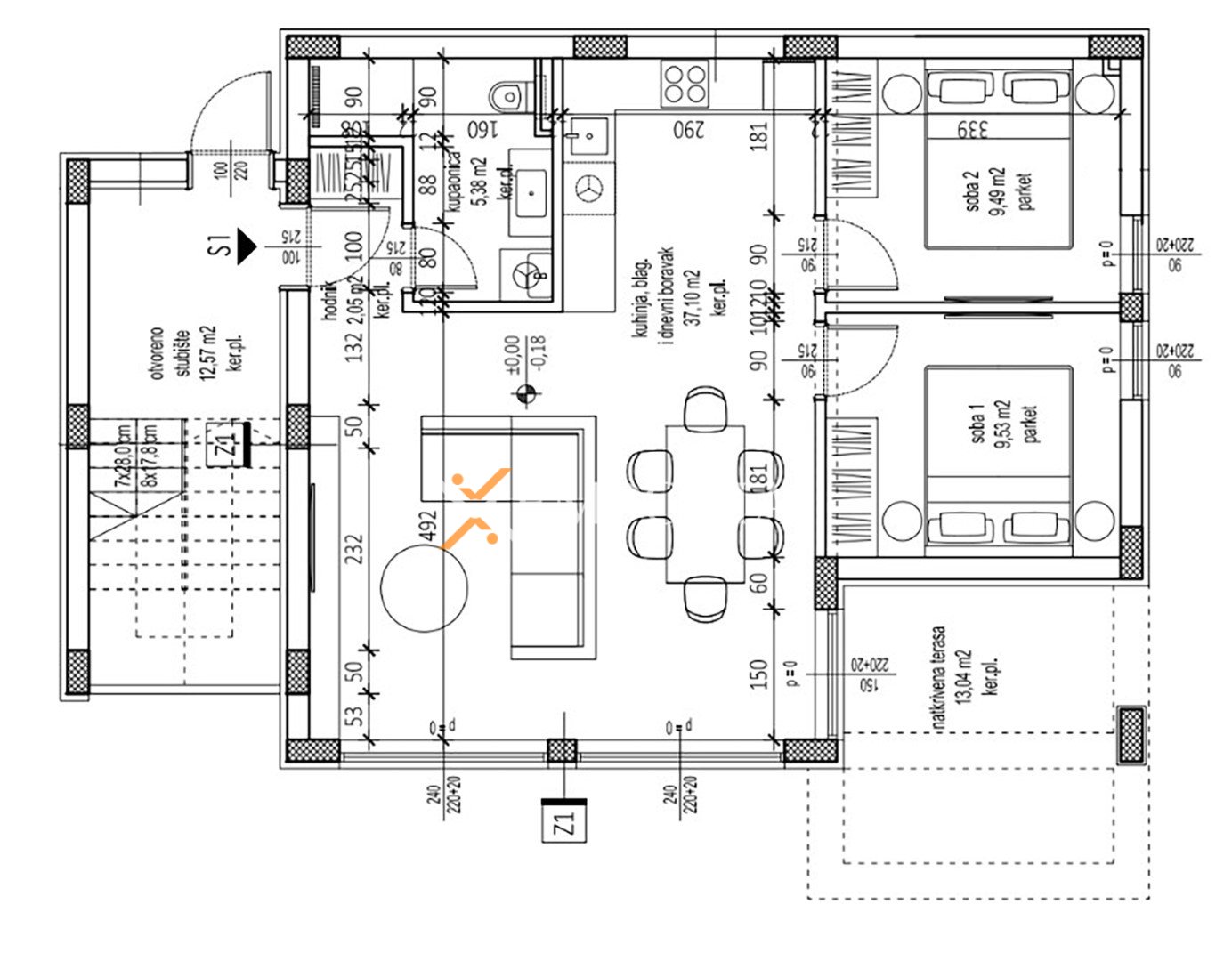
The apartment consists of an entrance hall, two bedrooms, a bathroom, a kitchen with dining area and living room, and a covered terrace. The net usable area of the interior is 70,07 m2. Furthermore, the property includes a spacious garden of 101,53 m2 with a pool of 30,40 m2, which additionally enhances comfort and privacy. The total net usable area with appurtenances is 101,48 m2.
Additionally, the apartment comes with two parking spaces, one covered and one uncovered. The planned completion of construction is by the end of 2026, and the expected energy certificate is A.
There is also an option to purchase a boat mooring.
The building is constructed with high-quality thermal brick blocks, while the facade is insulated with 10 cm Styrofoam. Aluminum joinery with triple glazing, electric shutters, and mosquito nets is installed. Floor coverings include tiles and parquet, while the entrance door is burglar-proof and fire-resistant. The kitchen is included in the price, which further simplifies moving in.
This property offers an excellent combination of modern construction, an attractive location, and a functional layout, making it an ideal choice for living or investment.
Petrcane is a small place located between Zadar and Nin. Petrčane is well known for its exclusive villas, hotel accommodation, rich gastronomic offer and thus tourism is at a high level. In the green forest on Punta Radman there is developed hotel complex Pinija, and on the other, the north-west side there is a weekend and hotel-apartment complex Punta Skala.
Discover why Petrčane is an attractive location for buying real estate.
Browse our complete offer of properties for sale .
If you have found this property elsewhere advertised at a lower price, that same price is valid with us!
Link to frequently asked questions
