If you have found this property elsewhere advertised at a lower price, that same price is valid with us!
Link to frequently asked questions
Location is not the exact address of the listing.
Viewing via VIDEO CALL
CALL US TODAY +385 23 300 000

In the area of Sabunike, Privlaka, a house with a swimming pool is for sale. It is a new building. Partial sea view from the first floor.
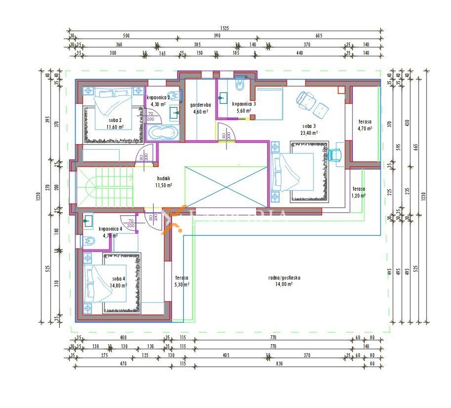
House consists of the ground floor and the 1st floor. Ground floor consists of hallway, bathroom, living room, kitchen and dining room, bedroom, storage room with external entrance, bedroom with a covered terrace. Yard is adorned with a swimming pool (28 m2) with a planned summer kitchen and fireplace. Internal staircase leads to the 1st floor. Upstairs are Hallway, bedroom with bathroom, bedroom with bathroom and terrace and bedroom with bathroom, wardrobe and terrace.
Total usable area of the house with the swimming pool is 224.6 m2. There are two parking spaces in the yard. Land area is 450 m2.
The house is 280 m away from the sea. Distance from the center of Privlaka is 2.6 km.
Construction with brick thermal blocks. Facade thermal insulation 10 cm styrofoam. Floor coverings are parquet and tiles. PVC windows with shutters and mosquito nets. There are electric shutters on the glass wall. Central heating with pellet stove. Additional electric underfloor heating in the bathroom. In addition, the front door of the house is burglar and burglary resistant.
Preparation for pool heating. Next to the pool there is an outdoor summer kitchen with a barbecue and an outdoor shower.
Sabunike is a small tourist resort ideal for a perfect, relaxing family vacation. Sabunike is located next to the royal town of Nin and the north of the tourist and fishing village of Privlaka. From Sabunike is an amazing view given, to the sea, the Velebit mountain and the town of Nin. There are very beautiful and numerous sandy beaches with many additional amenities.
All properties we offer in Privlaka you can check out here.
If you have found this property elsewhere advertised at a lower price, that same price is valid with us!
Link to frequently asked questions
