If you have found this property elsewhere advertised at a lower price, that same price is valid with us!
Link to frequently asked questions
Location is not the exact address of the listing.
Viewing via VIDEO CALL
CALL US TODAY +385 23 300 000

For sale is a beautiful luxury villa with pool and stunning sea views. The villa has an elevator. It’s a new project.
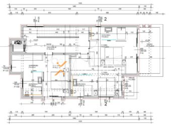
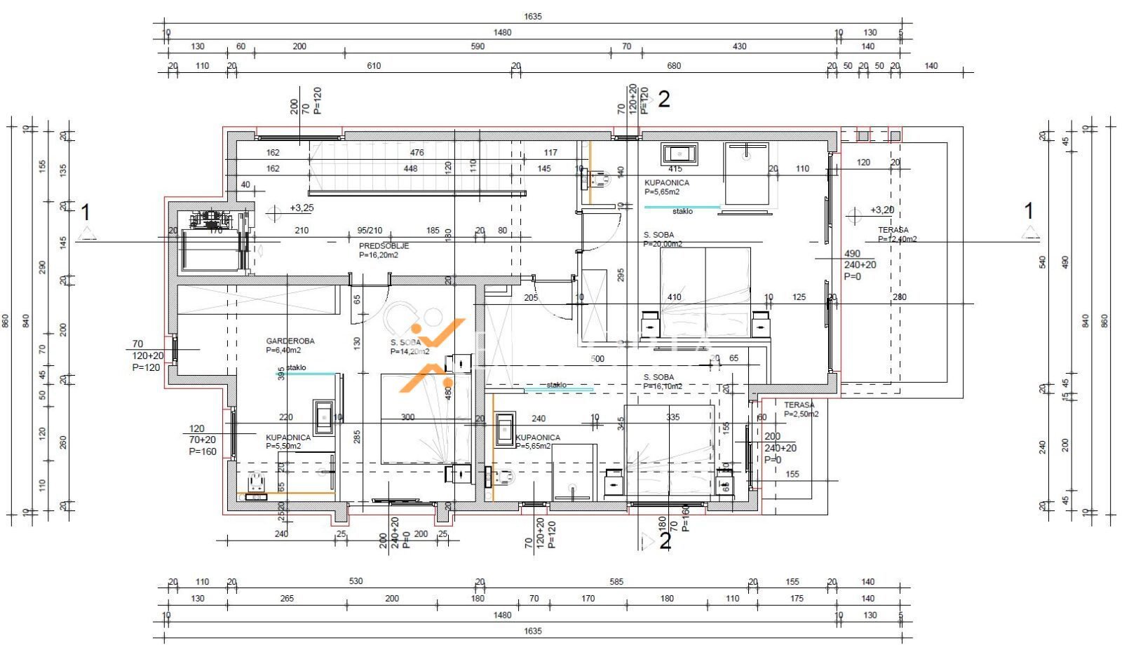
The room layout consists of:
On the ground floor: entrance, hallway, toilet, storage room, kitchen with dining room and living room and partly covered terrace.
On the first floor: hallway, bedroom with wardrobe and bathroom, bedroom with partly covered terrace and bathroom, bedroom with uncovered terrace and bathroom.
On the second floor: hallway, bedroom with covered terrace and bathroom, wellness/fitness room and partially covered terrace.
The total usable area of the villa is 310 m2.
Surface of the heated pool is 42 m2. It is laid with ceramics.
The area of land on which the villa will be built is 479 m2.
There are two parking spaces in the yard.
The project started in the summer of 2023 and the move-in date is expected to be in the spring of 2026.
The sea is only 90 m away from this property. The center of Sukošan is 1.4 km away.
The construction is done with a concrete wall. The floor coverings are tiles. Windows are aluminum with electric shutters and mosquito nets. All rooms are air-conditioned with ceiling air conditioners. Underfloor heating via heat pumps is installed throughout the house. There is a charging station for electric cars in the parking lot. The front door of the house is burglar resistant.
An A energy certificate is expected for this property.
Sukošan is a charming Dalmatian town nestled in the spacious Zlatna Luka bay, only 7 km from Zadar. With around 3,000 residents and nearby villages such as Debeljak, Glavica, and Gorica, it offers a peaceful Mediterranean atmosphere combined with excellent transport connections. The main attraction is D-Marin Dalmacija, the largest marina on the Adriatic, making Sukošan a true paradise for sailors and sea lovers.
The town is famous for its diverse beaches, including the popular Children’s Paradise, the quieter Podvare beach, or the pebble Makarska beach, as well as hidden coves waiting to be discovered. Swimming, sailing, and relaxing seaside walks are enhanced by a rich cultural and social life. During summer, visitors can enjoy fishermen’s feasts, concerts, folklore evenings, and the feast of St. Kasijan with its festive fireworks. Sports lovers are drawn by the swimming marathon, local tournaments, and the renowned regatta “Dance with Sails.”
Thanks to its unspoiled nature, first-class nautical facilities, and vibrant events calendar, Sukošan is one of the most desirable places to buy property on the Adriatic – whether you are looking for a tranquil home by the sea or an attractive investment with high rental potential.
All listings we have available in Sukošan you can find here.
If you have found this property elsewhere advertised at a lower price, that same price is valid with us!
Link to frequently asked questions
