If you have found this property elsewhere advertised at a lower price, that same price is valid with us!
Link to frequently asked questions
Location is not the exact address of the listing.
Viewing via VIDEO CALL
CALL US TODAY +385 23 300 000

For sale is a house located in Pridraga, in a quiet residential area with a partial sea view. The property is 750 m from the sea and 1,6 km from the town center, which makes it suitable for both everyday living and holiday use.
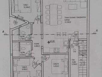
The house consists of one residential unit and is designed as a single-storey ground floor property. The total living area amounts to 87,01 m². The layout includes an entrance porch, a living room connected to the kitchen and dining area, three bedrooms, and two bathrooms. A storage room of 1,53 m² is located under the staircase, while a covered terrace is positioned in front of the house, providing a pleasant outdoor space.
The house is situated on a land plot of 389 m². The garden is landscaped and equipped with an irrigation system, while an additional garden shed is located within the yard. Four parking spaces belong to the property, offering excellent practicality.
The house is sold fully furnished. Central heating is provided via a pellet system, while air conditioning is installed through four units located in the living room and bedrooms. The house is built using brick blocks and features PVC windows with shutters and mosquito screens. The façade is insulated with 10 cm Styrofoam. Floor coverings consist of tiles, and a chimney is also available.
The house was built in 2009 and renovated in 2021, when new windows, shutters, entrance doors, and the façade were installed. This property represents a functional and well-maintained home with a garden and partial sea view, located in a stable and pleasant environment.
Pridraga is a place in the Novigrad municipality, situated on a peninsula between the Novigrad and Karin seas. Pridraga is a very beautiful, pleasant and quiet place, ideal for vacations, and the coast is adorned with beautiful beaches. Distance from Zadar is only 35 km.
Pridraga is an attractive location for buying real estate , suitable for peaceful living and quality residential development.
Discover our full selection of properties we offer for sale .
If you have found this property elsewhere advertised at a lower price, that same price is valid with us!
Link to frequently asked questions
