If you have found this property elsewhere advertised at a lower price, that same price is valid with us!
Link to frequently asked questions
Location is not the exact address of the listing.
Viewing via VIDEO CALL
CALL US TODAY +385 23 300 000

A ground-floor apartment in the second row from the sea is for sale in Sveti Filip i Jakov, located only 60 m from the sea. The property offers a spacious and functional layout, suitable for family use or as a seaside retreat.
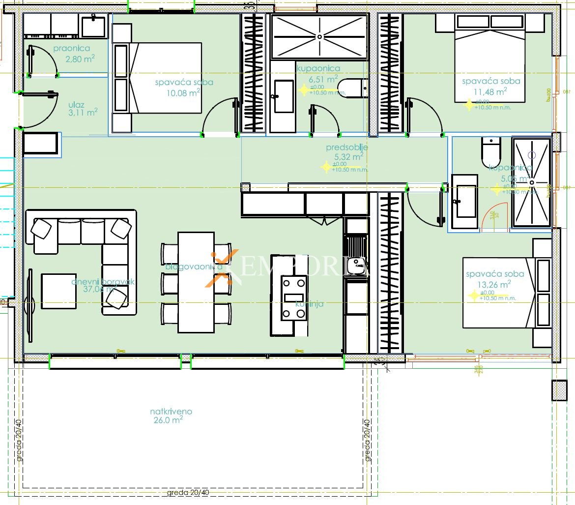
The layout includes a hallway, two bedrooms, one bedroom with an en-suite bathroom, an additional bathroom, a laundry room, a kitchen connected to the dining and living area, and a covered terrace.
The net usable area of the apartment is 107.67 m², while the total net area including accessory parts amounts to 127.67 m².
The apartment also includes a garden of approximately 150 m² with a swimming pool, as well as two parking spaces.
The property is built with brick thermal blocks, features aluminium joinery with triple glazing, electric shutters and insect screens, and a 10 cm thick styrofoam façade. The floors combine tiles and parquet, the entrance door is security and fire-resistant, and the drainage system is connected to the public sewage network. The building has a new flat concrete roof.
The bathrooms are equipped with electric underfloor heating, and four air-conditioning units are installed in the living room and bedrooms, ensuring comfortable temperatures throughout the year.
The buyer does not pay real estate transfer tax, which makes this offer particularly attractive.
The planned completion year is 2027, and the expected energy certificate is A.
This apartment represents a quality property in an excellent seaside location, ideal for peaceful living, family use, or as a valuable coastal investment.
The small picturesque village of Sveti Filip i Jakov is located on the coast of the Pasman Sea, between Zadar and Biograd. Sv. Filip i Jakov is a place known for its former manor houses that preceded today’s holiday homes and well-developed tourism. Sv. Filip i Jakov is famous for its beautiful pebble and sandy beaches. Likewise, along the length of the beach stretches a beautiful promenade, which connects the coast of Sv. Filip i Jakov and Turanj.
This little place offers everything you need for everyday life and for an ideal holiday. Numerous restaurants, cafes and shops make your stay here even more relaxing. Sveti Filip i Jakov is connected to the city of Biograd, where a lot of other content is offered, and in the immediate vicinity is the newly built Fun Park Mirnovec.
Sveti Filip i Jakov is an excellent destination for buying real estate by the sea , attractive for both holidays and year-round living.
Discover our full selection of properties we offer for sale .
Other apartments for sale in the same building include: A1549, A1551 and A1552.
If you have found this property elsewhere advertised at a lower price, that same price is valid with us!
Link to frequently asked questions
