If you have found this property elsewhere advertised at a lower price, that same price is valid with us!
Link to frequently asked questions
Location is not the exact address of the listing.
Viewing via VIDEO CALL
CALL US TODAY +385 23 300 000

For sale is a new build apartment in Privlaka, located only 100 m from the sea and 1,1 km from the town centre. The property benefits from an attractive location and offers a beautiful sea view, which significantly increases its value and investment potential.
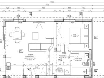
The apartment is situated on the ground floor. The layout includes an entrance hall, one bedroom, bathroom, laundry room, kitchen with dining area and living room, as well as a covered terrace. The net usable area of the described rooms is 54,43 m2. In addition, the apartment includes a private garden of 71 m2 and two parking spaces. The total net area including all associated parts is 66,73 m2.
The apartment features electric underfloor heating throughout the entire unit. Furthermore, two air conditioning units are installed, one in the living room and one in the bedroom. The building is constructed with thermal brick blocks, while the facade is insulated with 10 cm styrofoam, which improves energy efficiency.
PVC windows come with triple glazing. Large glass walls are fitted with electric shutters, while the remaining windows have standard shutters and mosquito screens. Floors are finished with tiles and laminate. The entrance door is burglar-resistant and fire-resistant. The roof is new, flat and made of concrete.
The year of construction is 2026, and the expected energy certificate is A.
Privlaka is a small tourist place located only 15-minute drive from the city of Zadar, situated on a sandy peninsula between the royal town of Nin and the island of Vir. The clear blue sea and long, shallow sandy bays are ideal to relax completely. The place offers all the necessary content for pleasant life: shops, restaurants, post office, infirmary. Lovers of sports, recreation who want to try sailing or surfing will find their own piece of paradise in the nearby places. All you need for a peaceful and relaxing family holiday in the Mediterranean style you can find here.
Discover why Privlaka is an attractive location for buying real estate.
Explore our complete offer of properties for sale.
In the same building, we also offer the following apartments for sale: A1576, A1578, A1579, A1580 and A1581.
If you have found this property elsewhere advertised at a lower price, that same price is valid with us!
Link to frequently asked questions
