If you have found this property elsewhere advertised at a lower price, that same price is valid with us!
Additional features
Link to frequently asked questions
Location is not the exact address of the listing.
Viewing via VIDEO CALL
CALL US TODAY +385 23 300 000

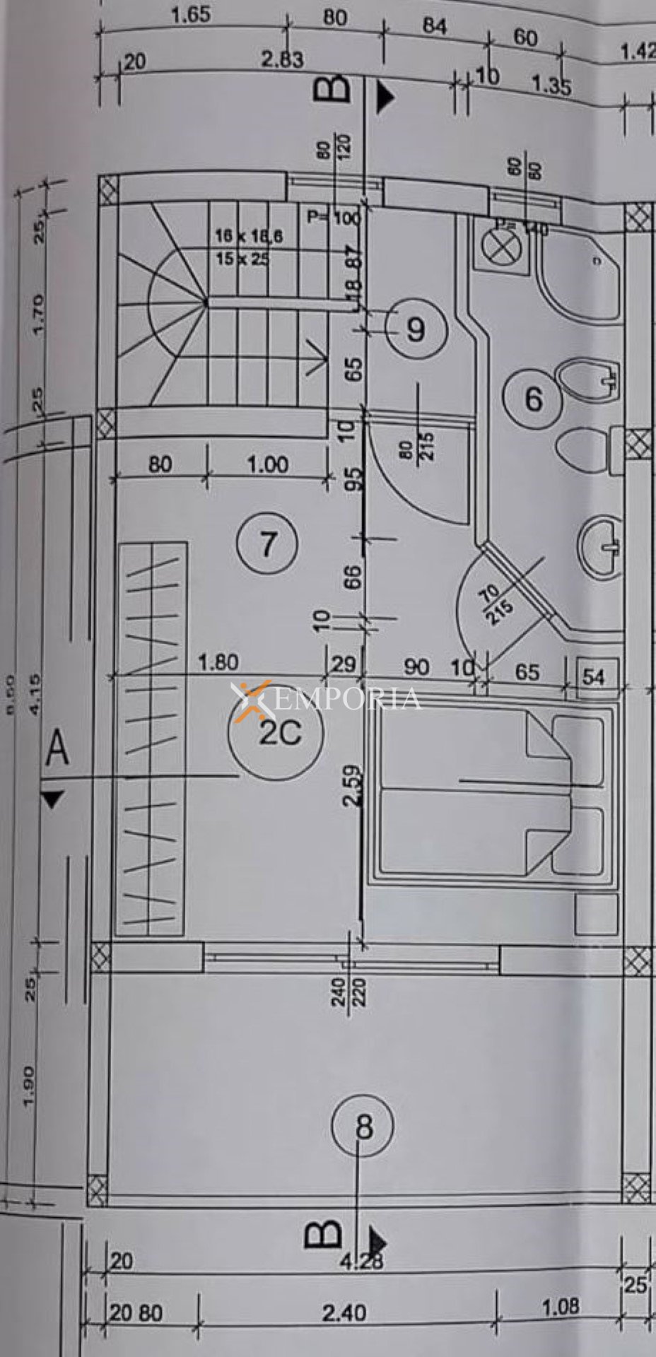
For sale is a three-level apartment in Maslenica, located only 400 m from the sea and the town centre. The property offers a sea view from the first and second floor.
The layout consists of the ground floor with a hallway, bathroom, and kitchen with dining area and living room, with a net area of 33,20 m². On the first floor there are a hallway, bedroom, bathroom, and loggia, with a net area of 30,90 m². On the second floor there are a hallway, bedroom, bathroom, and loggia, with a net area of 30,90 m². The apartment can be converted into 3 studio apartments.
The net usable area of the described rooms is 95,00 m², while the total net area including accessories is 101,00 m². The apartment includes a garden of approx. 35 m² and one parking space.
The apartment has electric underfloor heating throughout. It also has 3 air-conditioning units. It is built with thermal brick blocks, while the façade has 10 cm Styrofoam insulation. The windows are PVC with shutters, mosquito screens, and triple glazing. The floors are covered with tiles.
The year of construction is 2026, and the expected energy certificate is A.
Maslenica is a small place located on the coast of Novigrad Sea. The nearby river Zrmanja and Velebit mountain give a special charm to this place. Canyon of river Zrmanja is ideal for all lovers of rafting. Thanks to the vicinity of the highway Zagreb-Split and Zadar airport this place is becoming increasingly sought after tourist destination, which offers a family holiday in beautiful surroundings.
More about this location you can read on the site Maslenica.
Here you can check out the rest of our offer in Municipality Jasenice to which Maslenica belongs.
Other apartments available for sale in the building: A1593, A1594
If you have found this property elsewhere advertised at a lower price, that same price is valid with us!
Link to frequently asked questions
