If you have found this property elsewhere advertised at a lower price, that same price is valid with us!
Link to frequently asked questions
Location is not the exact address of the listing.
Viewing via VIDEO CALL
CALL US TODAY +385 23 300 000

A new build is for sale, located in Sabunike near Privlaka, in a quiet area just 450 m from the sea, with a sea view from the first floor and the roof terrace. The property is suitable for family living as well as for use as a holiday home by the sea.
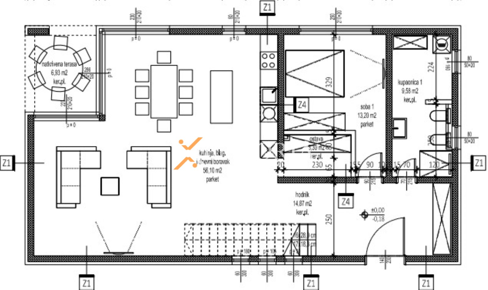
The house consists of one residential unit and extends over the ground floor, first floor, and roof terrace. The total surface area is 305.31 m², including the pool located on the roof terrace, while the land plot size is 350 m².
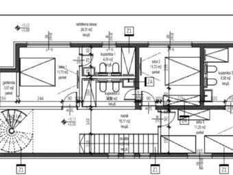
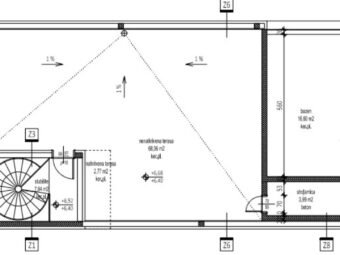
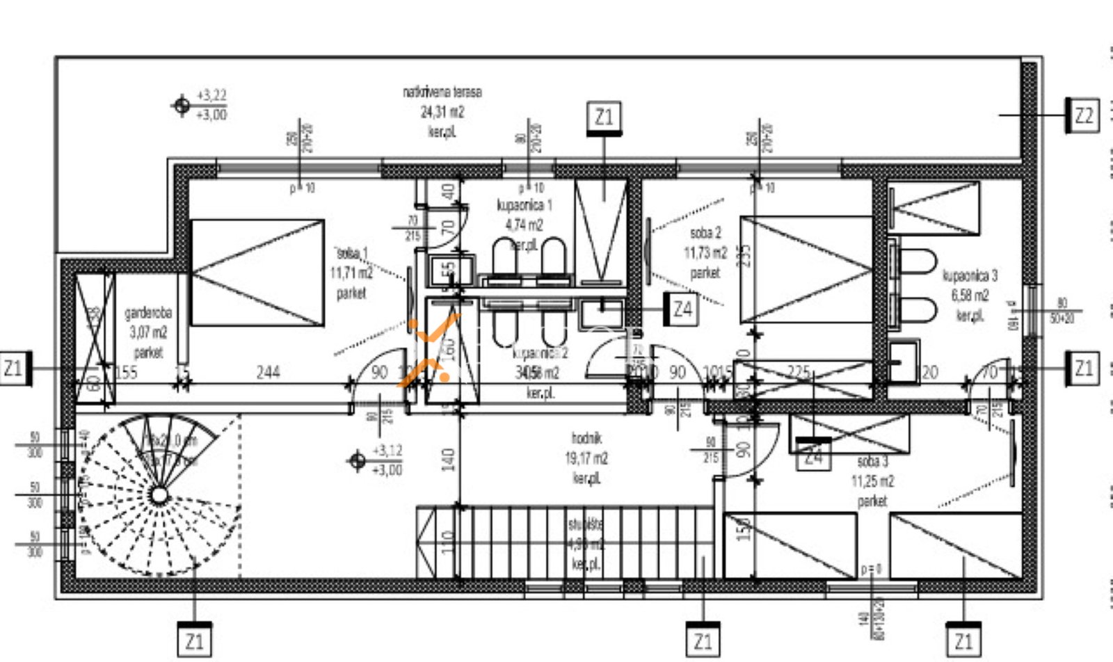
On the ground floor, there is a hallway, a living room connected to the kitchen and dining area, one room, a bathroom, a storage room, and a covered terrace. The first floor features three bedrooms, each with its own bathroom, a walk-in wardrobe, and a covered terrace. The roof terrace offers a combination of covered and uncovered areas, a swimming pool of 16.80 m² with a heating option, and a technical room.
The property includes a garden and two parking spaces. The storage room on the ground floor has a surface area of 3.30 m², adding to the functionality of the house
The house is built with brick thermal blocks, equipped with PVC joinery (triple glazing, electric shutters, insect screens), and features a 10 cm thick styrofoam façade. The floors are finished with tiles, and the drainage system is connected to the public sewage network.
Electric underfloor heating is installed throughout the entire house, and five air-conditioning units are installed in the living room and bedrooms, ensuring a comfortable temperature all year round.
The planned completion year is 2026, and the expected energy certificate is A.
This new build represents a high-quality and functional property with additional features such as a pool and roof terrace, located close to the sea and all essential amenities.
Sabunike is a small tourist resort ideal for a perfect, relaxing family vacation. Sabunike is located next to the royal town of Nin and the north of the tourist and fishing village of Privlaka. From Sabunike is an amazing view given, to the sea, the Velebit mountain and the town of Nin. There are very beautiful and numerous sandy beaches with many additional amenities.
Sabunike is an excellent destination for buying real estate by the sea , attractive for both holidays and year-round living.
Discover our full selection of properties we offer for sale .
If you have found this property elsewhere advertised at a lower price, that same price is valid with us!
Link to frequently asked questions
